
CARTI Cancer Center
CARTI | Perkins + Will | 2015
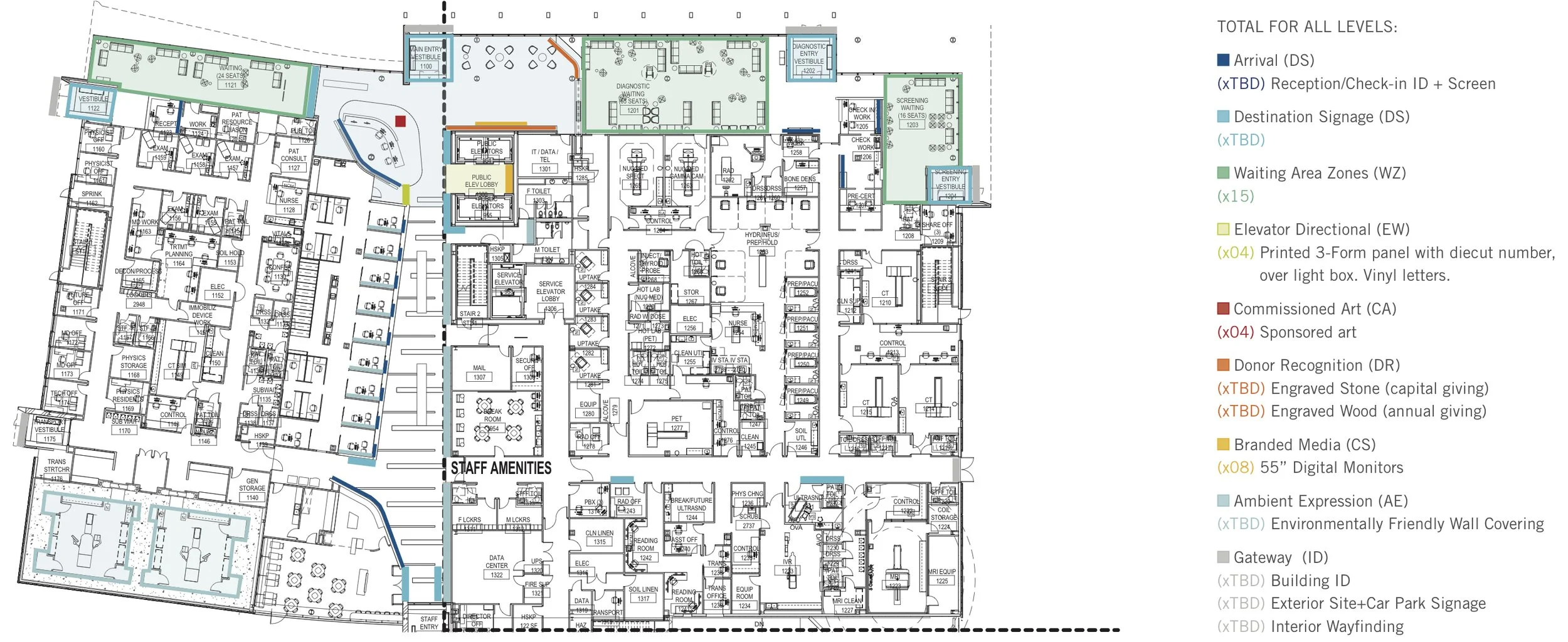
CARTI Cancer Center is a not-for-profit cancer treatment center based in Little Rock, Arkansas. In 2015, the Perkins&Will Branded Environments studio was commissioned to create a suite of environmental graphics and signage that would enunciate the CARTI mission.
Under my project lead, Christy Cain, I created a repeating lattice pattern using their quatrefoil logo as the motif which can be seen in many aspects of the project including custom lighting, textiles, and wallcoverings. With leadership from Korinna Hirsch, I designed interior and exterior signage that focused on patient autonomy and effortless wayfinding. Our designs decisions throughout the project centered on the patient’s ease of healing, in body, mind, and spirit.

Lobby

Lobby Ideation

Design Development

Wayfinding Ideation

Wayfinding

Location Plan